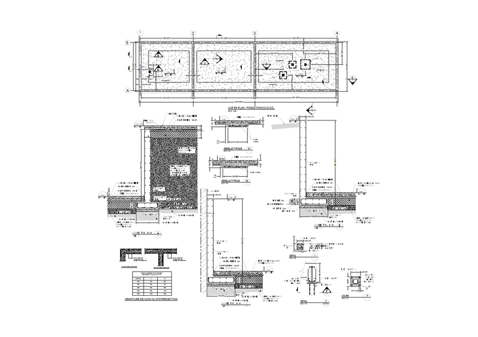
Voir à l’organisation du service technique, concevoir, calculer et préparer les plans et devis de structure en béton armé;
Usage des logiciels ARCHE Hybride, AutoCad
Coordonner et gérer le projet avec le client, l’architecte et les autres professionnels
Année : 2020
Companie : RUWAK.
Localisation : Montréal, Canada
RUWAK SOLUTION & DESIGN est une société offrant des principalement des services en ingénierie des structures de bâtiment (secteur : résidentiel, commercial, institutionnel et industriel) et d'ouvrages d'art tels que les ponts, barrages, centrales hydro-électrique, châteaux d'eau, piscines, etc.
Elle offre également des services en gestion de projet et surveillance de chantier.
Au Canada, nous aidons et accompagnons les entrepreneurs généraux, les auto-constructeurs, les promoteurs privés et investisseurs, les technologues en architecture et cabinet d'architectes, ainsi que d'autres firmes d'ingénierie, dans la matérialisation de leurs projets.
À l'international, notamment en République Démocratique du Congo et en Côte d'Ivoire, nous offrons les mêmes services avec nos équipes locales. Elles sont composées d'ingénieurs et techniciens locaux, ainsi que d'administratifs et commerciaux.
De plus, nous aidons les promoteurs et entreprise désirant s'implanter à international, principalement en République Démocratique du Congo, à créer leur entreprise et pouvons les accompagner dans leur gestion administrative quotidienne. Nous avons une équipe entièrement dédiée à ce service.
Nos professionnels, employés comme consultants, sont dédiés et à l'écoute des clients pour leur proposer des solutions inspirées et adaptées à leurs besoins, et un accompagnement à la hauteur de leurs attentes.
RUWAK SOLUTION & DESIGN est en mesure mobiliser rapidement une équipe pluridisciplinaire de professionnels expérimentés et efficaces pour l'ingénierie de projets pouvant aller de simples à complexes.
Offrir des solutions inspirées et promptement réfléchies, dans nos différents domaines de compétences, qui répondent aux besoins et à la réalité des clients.
- Respect - Travail d’équipe - Innovation - Satisfaction client
Canada :41 rue King Ouest Sherbrooke, Québec, Canada J1H 1P1
R.D.Congo : Bld 30 Juin, Av. de la Paix, Quartier Révolution, Immeuble Nvlle Galerie Présidentielle,26ème étage, C/Gombe KINSHASA
Côte d'Ivoire :BP631 GRAND-BASSAM
Canada : +1 873 888 8814
RDC : +243 824 266 511
Côte d'Ivoire : +225 0708845611-0555785006
Email : infos@ruwaksolutions.com
RUWAK SOLUTIONS & DESIGN a fait preuve de beaucoup de compétence et de sérieux dans les études de structures, charpentes ainsi que les fondations pour la réalisation de nos projets
Les services professionnels offerts ont été exécutés avec satisfaction conformément aux ententes contractuelles.