Travaux de drainage et d’aménagement urbain des bassins de la Phase 2, tranche 1, par HENNAN-CHINE

Tâches

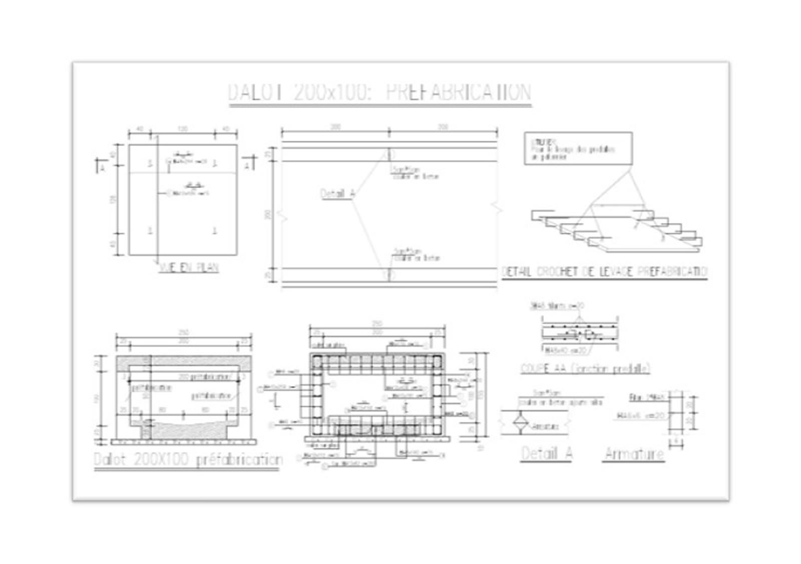
Vérification Des Plans;

Analyse Et Calcul De Vérification De Dalots En Béton Armé Sous Autoroute

ÉLaboration De Notes De Calcul

Année : 2016

Localisation : Yeumbeul Nord, Malika, Sénégal

A propos de RUWAK

RUWAK SOLUTION & DESIGN est une société offrant des principalement des services en ingénierie des structures de bâtiment (secteur : résidentiel, commercial, institutionnel et industriel) et d'ouvrages d'art tels que les ponts, barrages, centrales hydro-électrique, châteaux d'eau, piscines, etc.

Elle offre également des services en gestion de projet et surveillance de chantier.

Au Canada, nous aidons et accompagnons les entrepreneurs généraux, les auto-constructeurs, les promoteurs privés et investisseurs, les technologues en architecture et cabinet d'architectes, ainsi que d'autres firmes d'ingénierie, dans la matérialisation de leurs projets.

À l'international, notamment en République Démocratique du Congo et en Côte d'Ivoire, nous offrons les mêmes services avec nos équipes locales. Elles sont composées d'ingénieurs et techniciens locaux, ainsi que d'administratifs et commerciaux.

De plus, nous aidons les promoteurs et entreprise désirant s'implanter à international, principalement en République Démocratique du Congo, à créer leur entreprise et pouvons les accompagner dans leur gestion administrative quotidienne. Nous avons une équipe entièrement dédiée à ce service.

Nos professionnels, employés comme consultants, sont dédiés et à l'écoute des clients pour leur proposer des solutions inspirées et adaptées à leurs besoins, et un accompagnement à la hauteur de leurs attentes.

RUWAK SOLUTION & DESIGN est en mesure mobiliser rapidement une équipe pluridisciplinaire de professionnels expérimentés et efficaces pour l'ingénierie de projets pouvant aller de simples à complexes.

Bureau du Canada

Notre Mission

Offrir des solutions inspirées et promptement réfléchies, dans nos différents domaines de compétences, qui répondent aux besoins et à la réalité des clients.

Nos Valeurs

- Respect
- Travail d’équipe
- Innovation
- Satisfaction client

RUWAK

Notre Equipe

Contactez-Nous

RUWA SOLUTIONS S.A.R.L.U

Canada :41 rue King Ouest Sherbrooke, Québec, Canada J1H 1P1

R.D.Congo : Bld 30 Juin, Av. de la Paix, Quartier Révolution, Immeuble Nvlle Galerie Présidentielle,26ème étage, C/Gombe KINSHASA

Côte d'Ivoire :BP631 GRAND-BASSAM

Phones contact

Canada : +1 873 888 8814

RDC : +243 824 266 511

Côte d'Ivoire : +225 0708845611-0555785006

Email : infos@ruwaksolutions.com

Ecrivez-nous

Ce que disent nos clients